Dari Denah Rumah Terbuka ke Multi-Zone: Zonasi Fleksibel pada Rumah 60 m² Dua Lantai

Beddo Design Concept

Pendahuluan: Tren Hunian Modern dengan Konsep Open Plan

Dalam dunia arsitektur modern, konsep open plan atau tata ruang terbuka telah menjadi pilihan utama bagi banyak pemilik rumah dengan lahan terbatas. Bukan hanya karena tampilannya yang bersih dan efisien, tetapi juga karena kemampuannya dalam menciptakan ruang yang terasa lebih luas, terang, dan fleksibel.

Bagi rumah berukuran 60 m² dua lantai, pendekatan open plan tidak hanya menjawab kebutuhan estetika, tetapi juga menghadirkan solusi fungsional untuk kehidupan sehari-hari. Dengan perencanaan yang tepat, area terbatas dapat dimaksimalkan menjadi hunian yang nyaman, dinamis, dan berkarakter.

Beddo Design Concept memandang bahwa desain open plan bukan sekadar menghapus sekat, tetapi juga menciptakan keseimbangan antara keterbukaan dan zonasi fungsional agar setiap ruang tetap memiliki identitas dan kenyamanan tersendiri.

Apa Itu Konsep Open Plan?

Secara sederhana, open plan adalah tata ruang tanpa sekat permanen yang menggabungkan beberapa fungsi ruang dalam satu area luas. Biasanya, konsep ini diterapkan pada area ruang tamu, ruang makan, dan dapur, sehingga menciptakan sirkulasi yang lebih bebas dan interaksi antar penghuni yang lebih mudah.

Namun dalam konteks rumah dua lantai berukuran 60 m², open plan menjadi strategi desain yang tidak hanya estetis, tetapi juga efisien secara spasial dan fungsional. Setiap elemen ruang diatur sedemikian rupa agar tetap saling terhubung namun tetap memiliki batas visual yang jelas.

Keunggulan Konsep Open Plan pada Rumah Kecil

1. Ruang Terasa Lebih Luas dan Lapang

Dengan menghilangkan dinding pembatas, pandangan mata dapat menjangkau seluruh area tanpa terhalang, menciptakan ilusi ruang yang lebih besar.

2. Sirkulasi Udara dan Cahaya Lebih Baik

Pencahayaan alami dapat menjangkau seluruh bagian rumah, mengurangi kebutuhan pencahayaan buatan di siang hari dan meningkatkan kualitas udara dalam ruangan.

3. Komunikasi Antar Penghuni Lebih Lancar

Tanpa sekat, anggota keluarga dapat berinteraksi lebih mudah, terutama bagi pasangan muda atau keluarga kecil dengan mobilitas tinggi.

4. Desain Lebih Fleksibel dan Adaptif

Ruang terbuka memungkinkan penghuni menyesuaikan tata letak furnitur sesuai kebutuhan, baik untuk bekerja, bersantai, maupun menerima tamu.

Tantangan Desain Open Plan di Rumah 60 m² Dua Lantai

Walaupun tampak ideal, konsep open plan tetap membutuhkan perencanaan cermat agar fungsi ruang tidak saling tumpang tindih. Beberapa tantangan yang sering muncul antara lain:

  1. Kehilangan Privasi
    Karena minim sekat, aktivitas di satu area sering kali terlihat dari area lain. Solusinya adalah dengan penggunaan elemen pembatas ringan seperti partisi kayu, rak terbuka, atau perbedaan level lantai.
  2. Pengendalian Suara dan Bau
    Area dapur yang menyatu dengan ruang makan dan tamu berpotensi menimbulkan aroma masakan atau kebisingan. Sistem ventilasi dan exhaust yang baik sangat diperlukan.
  3. Penataan Furnitur yang Tepat
    Pemilihan furnitur multifungsi menjadi kunci agar ruang tetap efisien tanpa terlihat penuh.

Dari Open Plan ke Multi-Zone: Evolusi Desain Rumah Modern

Kini, konsep open plan berkembang ke arah yang lebih terstruktur dan adaptif, dikenal dengan istilah multi-zone layout.

Alih-alih sepenuhnya tanpa sekat, rumah dirancang dengan zona fleksibel yang membedakan area publik, semi privat, dan privat tanpa mengorbankan keterbukaan ruang.
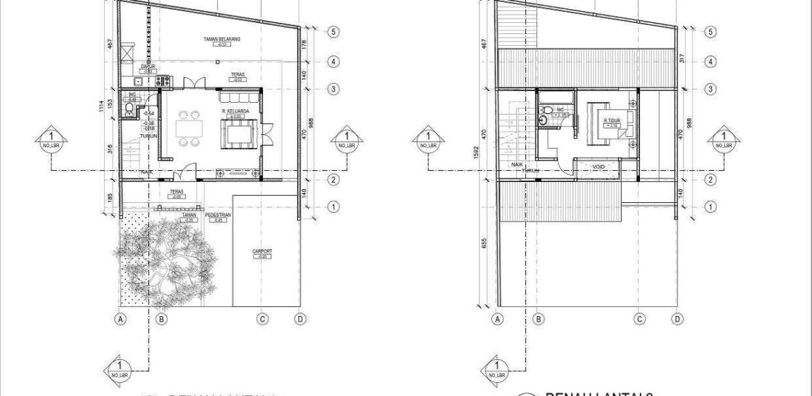
Dalam konteks rumah 60 m² dua lantai, penerapan zonasi fleksibel ini sangat relevan untuk menyeimbangkan kenyamanan dan efisiensi fungsi.

Zona Publik (Lantai Dasar)

Area ini biasanya mencakup ruang tamu, dapur, dan ruang makan dalam satu kesatuan terbuka. Di sini, desain open plan diterapkan sepenuhnya agar ruang terasa lega.
Namun Beddo menyarankan penggunaan visual zoning seperti perbedaan material lantai, pencahayaan, atau elemen vertikal (misalnya rak atau island dapur) untuk memberi identitas pada setiap area tanpa harus menutup ruang.

Zona Semi Privat (Lantai Dua Depan)

Bagian ini bisa difungsikan sebagai ruang kerja, ruang keluarga kecil, atau ruang belajar. Walaupun tetap terbuka, zona ini sebaiknya memiliki batas akustik seperti pintu geser kaca atau partisi ringan agar aktivitas lebih fokus.

Zona Privat (Lantai Dua Belakang)

Merupakan area kamar tidur dan ruang pribadi lainnya. Di zona ini, Beddo tetap menjaga konektivitas visual dan pencahayaan alami, namun dengan privasi yang cukup melalui layout dan orientasi bukaan yang cermat.

Strategi Beddo dalam Menerapkan Zonasi Fleksibel

1. Penerapan Level Lantai dan Ceiling

Perbedaan ketinggian lantai atau plafon dapat membantu membedakan fungsi ruang tanpa memerlukan dinding pembatas.

2. Penggunaan Material yang Berbeda

Transisi antarzona bisa ditekankan melalui pergantian material lantai, misalnya granit di dapur dan parket di ruang tamu.

3. Elemen Furnitur sebagai Pembatas

Island dapur, rak buku terbuka, atau panel kayu berlubang dapat digunakan untuk memisahkan area tanpa menutup pandangan.

4. Penataan Cahaya yang Tepat

Pencahayaan buatan dengan intensitas berbeda membantu mempertegas fungsi tiap zona. Misalnya, lampu gantung hangat di ruang makan dan lampu kerja di area baca.

5. Optimalisasi Sirkulasi Vertikal

Tangga menjadi elemen penting dalam rumah dua lantai. Beddo sering mengintegrasikan tangga sebagai elemen desain fungsional yang juga berfungsi sebagai pembagi area, tanpa mengganggu aliran ruang.

Inspirasi Desain Rumah 60 m² Dua Lantai dengan Konsep Multi-Zone

  • Desain Modern Minimalis dengan Sentuhan Kayu
    Kombinasi dinding putih, aksen kayu, dan bukaan kaca besar menciptakan kesan hangat sekaligus modern. Tata ruang open plan di lantai dasar memberi efek lapang, sedangkan lantai dua difokuskan pada area privat yang tenang.
  • Desain Tropis Terbuka dengan Sirkulasi Udara Maksimal
    Menggunakan ventilasi silang dan bukaan besar, desain ini memaksimalkan aliran udara alami. Beddo menerapkan skylight dan ventilasi silang agar rumah tetap sejuk meski di lahan terbatas.
  • Desain Industrial Compact
    Ekspos material seperti bata dan baja ringan dengan penataan ruang terbuka yang efisien. Lantai dasar menjadi satu kesatuan ruang publik, sementara lantai dua disusun lebih privat.

Manfaat Konsep Open Plan dan Multi-Zone untuk Kehidupan Modern

  • Fleksibilitas Aktivitas:
    Ruang bisa beradaptasi untuk berbagai kebutuhan — bekerja, bersantai, hingga berkumpul keluarga.
  • Efisiensi Energi:
    Cahaya alami dan sirkulasi udara mengurangi kebutuhan AC dan lampu di siang hari.
  • Estetika dan Fungsionalitas Seimbang:
    Desain open plan dengan zonasi fleksibel menghasilkan hunian yang modern, nyaman, dan memiliki nilai visual tinggi.
  • Nilai Investasi yang Tinggi:
    Rumah dengan tata ruang terbuka dan penataan efisien memiliki daya tarik tinggi di pasar properti, terutama bagi pasangan muda.
  1. Rencanakan Denah Secara Detail
    Buat skema zonasi sejak awal untuk memastikan setiap area memiliki fungsi dan kenyamanan optimal.
  2. Pertimbangkan Arah Matahari dan Angin
    Bukaan jendela dan ventilasi alami harus dirancang agar mendukung kenyamanan termal rumah.
  3. Gunakan Warna dan Tekstur dengan Tepat
    Warna cerah seperti putih dan abu muda membantu menciptakan kesan luas dan bersih.
  4. Percayakan pada Arsitek Profesional
    Penerapan open plan dan zonasi fleksibel memerlukan keahlian dalam perhitungan proporsi, pencahayaan, serta tata sirkulasi agar hasilnya optimal.

Kesimpulan: Rumah Terbuka, Ruang Fleksibel, Hidup Dinamis

Desain open plan bukan sekadar tren, melainkan wujud dari cara hidup modern yang menekankan efisiensi, keterbukaan, dan konektivitas. Dalam rumah dua lantai berukuran 60 m², penerapan konsep multi-zone menjadi langkah evolutif yang menjawab kebutuhan fungsional dan estetika sekaligus.

Melalui pendekatan profesional dan berkelanjutan, Beddo Design Concept menghadirkan desain hunian yang cerdas, fleksibel, dan selaras dengan gaya hidup urban masa kini.

Hunian tidak harus besar untuk terasa nyaman — yang penting adalah bagaimana setiap ruang dirancang dengan cermat, terarah, dan berjiwa.

Beddo Design ConceptElevating Homes, Sustainable Innovation.
Desain cerdas, efisiensi ruang, dan kenyamanan yang dirancang dengan hati.

/1
Distribution Manager
August 2, 2022 Vacaville, CA, US
The distribution manager is responsible for managing safe, efficient, and timely flow of finished goods from warehousing.
Full Time